Manny Verdugo / CDN Global Advisors Ltd.

6163 6 Street SE, Commercial for sale in Manchester Industrial Calgary , Alberta , T2H 1L9

 MLS® # A2277490

0 bathrooms

Sign up to View

Days on Market

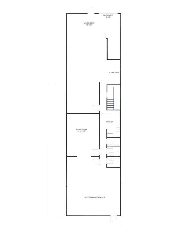
Rare 2,304 SF industrial bay located in Manchester Industrial Park with direct visibility to Blackfoot Trail SE. The space features a large front showroom, two spacious offices, a kitchenette, and two washrooms, totaling approximately 1,344 SF of office space. At the rear of the unit is approximately 960 SF of warehouse space, equipped with 100 amps of power (TBV), one dock door (8 ft x 8 ft), and a bonus storage mezzanine (free of charge). Reserved parking plus street parking are available. The property of...

Read More

Essential Information

  • MLS® #
    A2277490
  • Year Built
    1972
  • Property Type
    Industrial
  • MLS® #
    A2277490
  • Year Built
    1972
  • Property Type
    Industrial
  • MLS® #
    A2277490
  • Year Built
    1972
  • Property Type
    Industrial

Community Information

  • Postal Code
    T2H 1L9
  • Postal Code
    T2H 1L9
  • Postal Code
    T2H 1L9

$15/sqft

6163 6 Street SE

Schedule Tour
Contact Agent

$1/month
Est. Monthly Payment
$
$
%
Learn More