Kendra Walls / CIR Realty
MLS® # A2281853
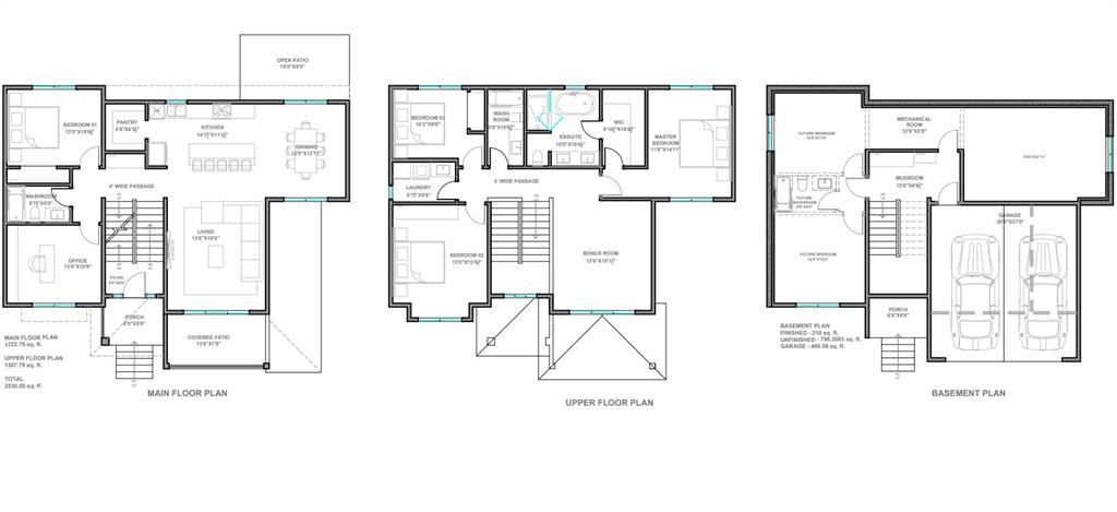
Welcome to 400 Lakewood Drive, a future build by Dhaduk Homes, perfectly positioned as a reverse walkout backing onto the canal. Thoughtfully designed to capture both east morning light and west sunset views over the pond and lake, this home blends everyday function with elevated living. Step inside to a light filled kitchen where a large island becomes the natural gathering place. A generous walk in pantry keeps everything tucked away, while the dining room is wrapped in windows and opens to an east faci...